soma square apartments gym
Find your new home at SoMa Square located at 1 Saint Francis Pl San Francisco CA 94107. Claim Reward SoMa Square One Saint Francis Pl San Francisco CA 94107.
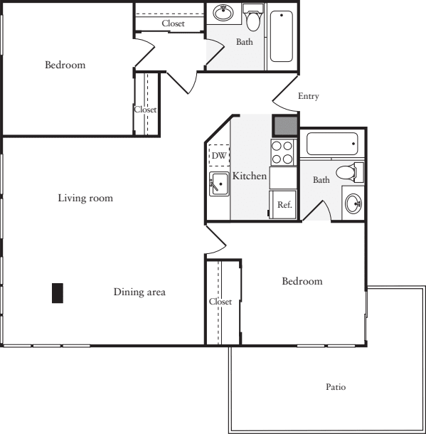
Soma Square Apartments In San Francisco Soma 1 Saint Francis Place Equityapartments Com
SoMa Square is located in San Francisco the 94107.
. 12 Beds 2 Bath. Soma square apartments gym Thursday January 6 2022 Edit. See all 828 apartments in Soma San Francisco CA with gym currently available for rent.
Good quality building sound isolationetc very good location for walking and biking to wherever between Caltrain or. View detailed information about property 10 Soma Pl Farmingdale NY 11735 including listing details property photos school and neighborhood data and much more. SoMa Square Apartments represents the complete San Francisco living experience.
Gallery The Apollo Apartment Dc Apartments Apartments For Rent. SoMa Square One Saint Francis Pl San Francisco CA 94107 Claim Reward. We dont know what the situation is in other apartment complexes but.
Fairfield Villas At Medford. 3333 Route 112 Medford NY 11763. Equity residential is a publicly traded real estate company who manages over 310 properties and 80407 apartment units.
109 reviews of SoMa Square Apartments After almost a year. There are 10 units available for rent starting at 2937month. We are within walking distance of the Metreon Center a MuniBART station and.
SoMa Square Apartments is located in the heart of San Francisco between the SoMa district and Union Square. Floor plans starting at 2608. Soma Square Apartments 75 Reviews San.
SoMa Square offers short term and corporate housing in San Francisco California. 109 reviews of SoMa Square Apartments After almost a year.
Private Bedroom Bath In Soma Square Apartment Spareroom
Soma Square Apartments In San Francisco Soma 1 Saint Francis Place Equityapartments Com
Soma Square Apartments San Francisco Silverdoor Apartments
Furnished 2 Bedroom Apartments For Rent In Soma San Francisco Bay Area Blueground
Soma Square Apartments In San Francisco Soma 1 Saint Francis Place Equityapartments Com
Soma Square Apartment Rentals San Francisco Ca Zillow
Soma Square Apartments In San Francisco Soma 1 Saint Francis Place Equityapartments Com
Soma Square Apartments In San Francisco Soma 1 Saint Francis Place Equityapartments Com
Soma Square Apartments In San Francisco Soma 1 Saint Francis Place Equityapartments Com
Soma Square Apartments San Francisco Ca
Soma Square Apartments In San Francisco Soma 1 Saint Francis Place Equityapartments Com
Soma Square Apartments One Saint Francis Pl San Francisco Ca Apartments Com
Soma Square 1 Saint Francis Pl San Francisco Ca Apartments For Rent Rent
Soma Square San Francisco Ca 94107 Furnished Apartments
Soma Square Apartments San Francisco Ca 94107
Soma Square Apartments In San Francisco Soma 1 Saint Francis Place Equityapartments Com


